realizacje
miejscowy plan zagospodarowania przestrzennego terenu położonego w obrębie geodezyjnym Wytowno, gmina Ustka - 2010 r.
miejscowy plan zagospodarowania przestrzennego obszaru położonego w obrębie geodezyjnym Słajszewo, w rejonie wsi Biebrowo, w Gminie Choczewo - 2010 r.
miejscowy plan zagospodarowania przestrzennego terenu położonego w części północno – zachodniej obrębu geodezyjnego wsi Wytowno w Gminie Ustka - 2010 r.
wariantowe rozwiązania architektoniczne do koncepcji urbanistyczno-architektonicznej "Modrzewina Północ" - 2006 r.
koncepcja urbanistyczno-architektoniczna dla I etapu realizacji dzielnicy Modrzewina Północ w Elblągu - 2008 r.
miejscowe plany zagospodarowania przestrzennego w Krynicy Morskiej - 2009 r.
miejscowy plan zagospodarowania przestrzennego dla obszaru położonego w Rumi, zwanego „Stara Rumia” - 2011 r.
miejscowy plan zagospodarowania przestrzennego w częsci zachodniej obrębu geodezyjnego wsi Wytowno w gminie Ustka - 2010 r.
wstępna koncepcja zagospodarowania terenu na działce położonej w Dębnicy Kaszubskiej - 2007 r.
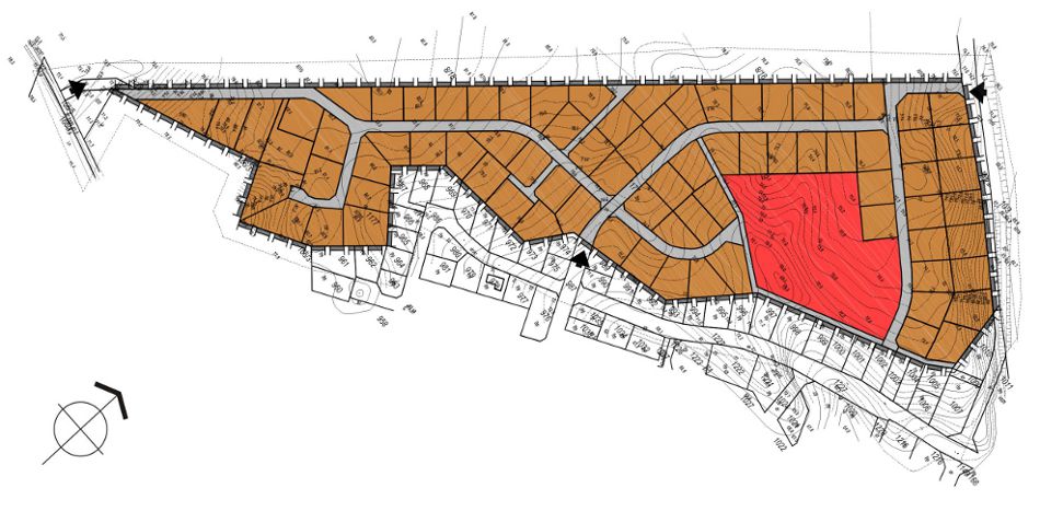
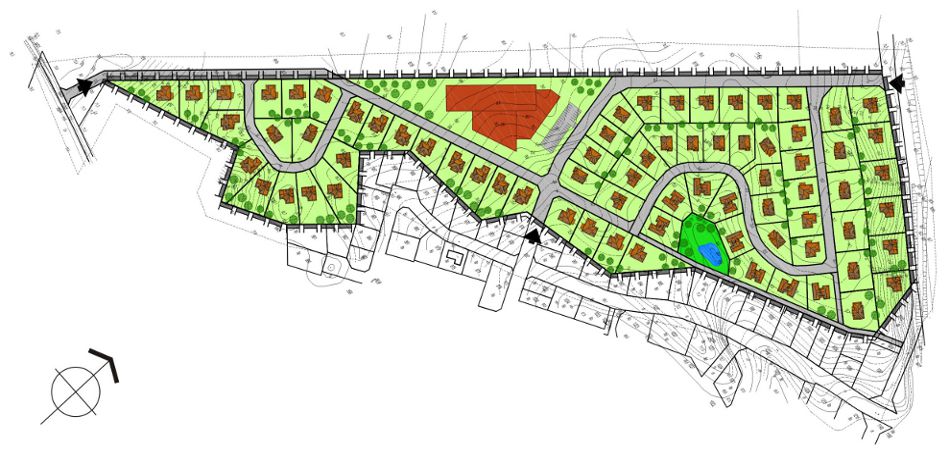
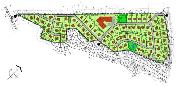
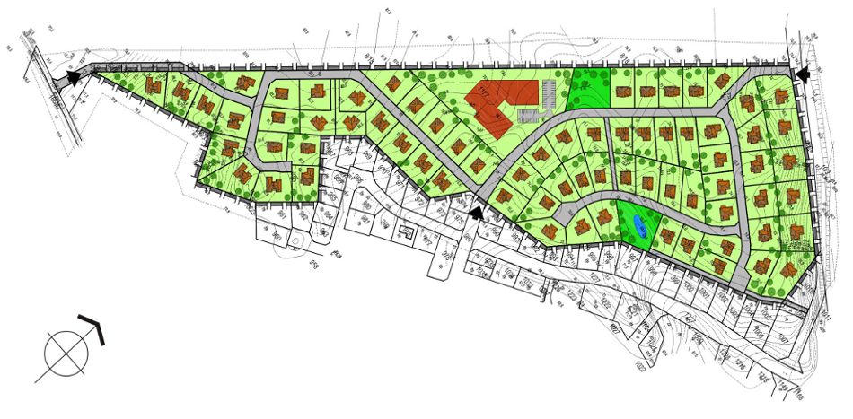
Charakterystyka struktury funkcjonalno-przestrzennej.
Kompozycję funkcjonalno-przestrzenną zagospodarowania 12 ha działki, o charakterystycznym trójkątnym kształcie, położonej na terenach przyległych do istniejącej i realizowanej zabudowy mieszkaniowej jednorodzinnej, dostosowano do naturalnego ukształtowania terenu, jako kontynuację zagospodarowania na terenach sąsiednich wraz z terenami zabudowy usługowej, które pełnić mają funkcję ośrodka usługowego.
Podstawowe elementy struktury funkcjonalno – przestrzennej to:
- usługi w zakresie podstawowym obsługi mieszkańców wraz z programem sportowo - rekreacyjnym;
- mieszkalnictwo jednorodzinne o niskiej intensywności zabudowy;
- układ dróg wewnętrznych w połączeniu z istniejącymi drogami gminnymi poza obszarem opracowania;









