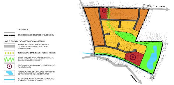
Obszar opracowania obejmuje powierzchnię około 16,16 ha. Położony jest w strefie wybrzeża w gminie Ustka, w odległości około 3 km od plaż Morza Bałtyckiego.
Celem planu było kompleksowe zagospodarowanie terenu podporządkowane polityce przestrzennej gminy Ustka i walorom przyrodniczo-krajobrazowym z uwzględnieniem lokalnych uwarunkowań występujących na obszarze planu i w jego otoczeniu.
W projekcie planu zaproponowano osiągnięcie zamierzonego celu poprzez dobór odpowiednich funkcji terenu, intensywności i typów zabudowy oraz kompozycję przestrzenną układu.
Po przeanalizowaniu uwarunkowań i możliwości inwestycyjnych występujących na obszarze objętym opracowaniem, przyjęto w planie jednorodną strukturę funkcjonalno-przestrzenną, mieszkaniową uzupełnioną o funkcje usługowe.







