wariant I – koncepcja urbanistyczno-architektoniczna dla I etapu realizacji
wariant II – koncepcja urbanistyczno-architektoniczna dla I etapu realizacji
Dwa warianty koncepcji zagospodarowania terenu różnią się wewnętrznym układem ulic dojazdowych.
Nie zmieniony pozostaje układ dróg powyżej kategorii dróg dojazdowych.
W wariancie I przedstawiono układ "pętlowy", a w wariancie II układ "gniazdowy" obsługi terenów mieszkaniowych i powiązań dróg dojazdowych z drogami kategorii lokalnej.
ukształtowanie terenu – hipsometria
model zabudowy mieszkaniowej wielorodzinnej – rzuty kondygnacji powtarzalnej
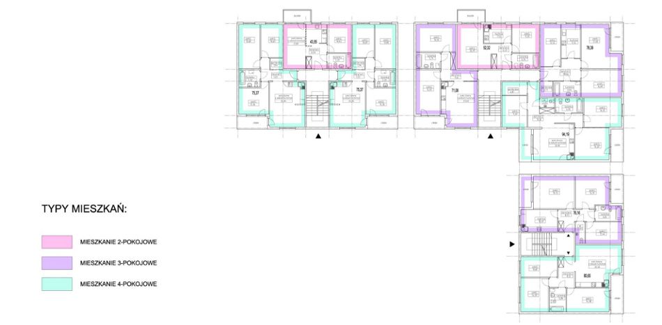
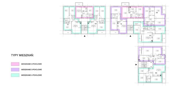
przykładowy układ mieszkań dla modułów: A, B, C
wizualizacja zagospodarowania terenu – widok w perspektywie