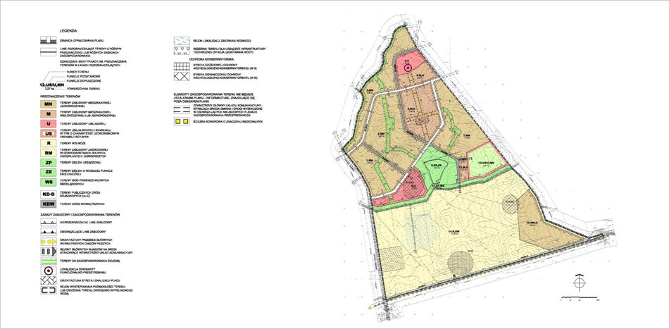
Obszar opracowania obejmuje powierzchnię około 100 ha. Położony jest w strefie wybrzeża w gminie Ustka, w odległości około 2 km od plaż Morza Bałtyckiego i w bezpośrednim sąsiedztwie nadmorskiej trasy rowerowej „Szlak Zwiniętych Torów”.
Kompozycję funkcjonalno-przestrzenną obszaru oparto na osi łączącej dominantę zlokalizowaną w północnej części obszaru, w najbardziej wyniesionym fragmencie terenu oraz naturalne obniżenie terenu w środkowej części obszaru. Naturalne obniżenie terenu wykorzystano dla lokalizacji zbiornika wodnego otoczonego zielenią parkową i urządzeniami sportowymi i rekreacyjnymi.
W północnej części obszaru zlokalizowano tereny zabudowy mieszkaniowej, jako kontynuację planowanych funkcji na terenach sąsiednich, wraz terenami zabudowy usługowej, które pełnić mają funkcję ośrodka usługowego dla obsługi przyszłych mieszkańców i turystów. Na terenach zabudowy usługowej, znajdujących się w sąsiedztwie zbiornika wodnego, preferowana jest lokalizacja obiektów bezpośrednio służących rekreacji, rehabilitacji i wypoczynkowi. Są to ośrodki wypoczynkowe, ośrodki rehabilitacji, odnowy biologicznej, sportu i rekreacji wraz zapleczem stanowiącym bazę dla użytkowników tych usług (hotele, pensjonaty). Południowa część obszaru pozostaje w rolniczym użytkowaniu.







